Over ons
RVS grootkeukens op maat
Van ontwerp tot perfecte installatie
In 2012 nam Tim Besselink het heft in eigen handen. Wat begon als een sprong in het diepe, groeide al snel uit tot een bedrijf dat synoniem staat voor betrouwbaarheid, kwaliteit en vooral: het volledig ontzorgen van klanten. Met een vastberaden visie en een flinke dosis ondernemerschap zette Tim samen met een team van ervaren collega's de eerste stappen naar een dienst waarin niet de klus, maar de klant centraal staat. De kracht zit in de eenvoud van onze aanpak: snel schakelen, duidelijk communiceren en leveren wat is beloofd. Zo zorgen wij er samen voor dat onze klanten zich kunnen richten op waar zij goed in zijn, terwijl wij de rest uit handen nemen. Dat is het doel van Besselink Techniek: zorgen wegnemen, verwachtingen overtreffen, en keer op keer vakwerk leveren waar je op kunt vertrouwen.
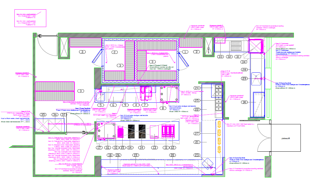
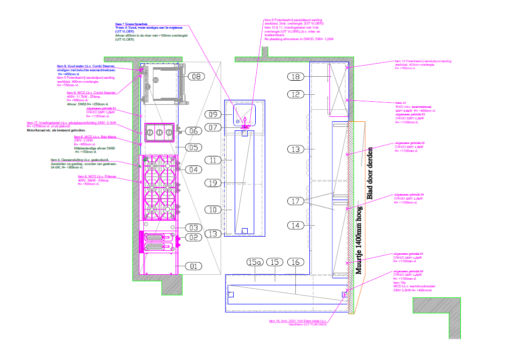
Van visie naar functionele topkeuken.
Neem contact met onze accountmanager op voor een vrijblijvend adviesgesprek.

